atelier gstrein

Bauherr: IISG, Stadt Innsbruck, Planung 2004 - 2006

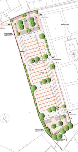
Erweiterung des Friedhofs in Arzl nach Westen in Hanglage und dörflicher Umgebung. Wand- und Erdgräber, Plätze mit Urnenwänden, durchgehende hohe Umfriedung. Stilistische Angleichung an den Bestand.

Entwurf, Baueingabe, Ausführungsplanung

Lageplan
Profil